Main Street Millions
Houston art rumblings: Another theater jumps into the renovation craze, trying to update its Rice Village digs
How do you solve a problem like Main Street's theater? Doing what this coterie of entertainment professionals does best: Charming their way into the wallets of art-loving consumers.
Leave it to the quick-witted Steve Garfinkel to transcribe the tunes of The Sound of Music into ditty centered on a priceless appeal for funds. A captive audience at Main Street Theater's capital campaign kickoff Monday evening no doubt understood how the antiquated Rice Village building on Times Boulevard hindered the growth of the 38-year-old performing arts company.
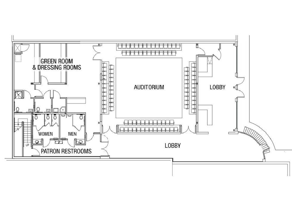
The $3 million initiative, chaired by Justin O'Brien and Dean O'Kelley, aims to pay off any debt associated with the recent $1.3 million purchase of the property, which is owned by two landlords; renovate and expand public sections, including building new restrooms and concession areas; raise the ceiling of the auditorium and remove structural columns that currently divide the space to create a more flexible stage; modernize the green room and dressings rooms; and add a second floor that will hold a new classroom/rehearsal hall adjacent to a stage manager's control booth. The blueprints were drawn by Studio Red Architects.
A $500,000 gift from the Houston Endowment subsidized the acquisition's down payment. Pledges from The Brown Foundation, The Albert and Ethel Herzstein Charitable Foundation, The Simmons Foundation and others already amount to $1.2 million in contributed cash.
Improvements completed to date include new front doors, a fresh exterior and a marquee in mint condition. These attributes so far contribute to an updated look and feel. But a walk through the behind-the-scenes corridors tell a much different story. Main Street Theater's intimate home since 1982 — a former laundry and dry cleaners — is in dire need of some love.
Executive artistic director Rebecca Greene Udden expects construction to commence in 2014.
The launch marks the second attempt at raising funds for a remodeling endeavor. A campaign in 2008 was abandoned at the suggestion of the board of directors after the country's economy took a dive. This time, the stakeholders say they are committed to seeing it through. Executive artistic director Rebecca Greene Udden expects construction to commence in 2014.
What the plans will not accomplish is to allow for more audience members.
"We can't increase our audience until the parking policies of the area are revised," Udden tells CultureMap. "We will offer the same number of productions. We will be able to rent the new rehearsal room in the proposed second floor to other theater groups."
The campaign comes at an interesting time in the development of Houston's arts sector. After the completion of the $47 million Houston Ballet Center for Dance, it appears as if other art presenters are following suit in an attempt to modernize their own spaces. Alley Theatre recently launched a $73-million campaign, $46.5 million of which is earmarked for a building makeover. Stages Repertory Theatre is on a quest to purchase its theater in River Oaks.
In addition, the supervision of the Barnevelder Movement/Art Complex was assumed by Dance Source Houston after managing director Louie Saletan relocation to New York left the premises in the hands of Suchu Dance's Jennifer Wood. Catastrophic Theatre seized the opportunity to lease its own performance space when DiverseWorks moved from Downtown to Midtown.
The second home of Main Street Theater at Chelsea Market in Montrose, however, will stay put until such time that Match (Midtown Arts & Theater Center Houston), formerly known as the IAC, fulfills its promise to establish a 59,000 square-foot complex on the corner of Main and Holman. That $26 million project — scheduled to begin construction in 2014 — is currently $10 million shy of its fundraising goal.
With all these large-scale, bigger budget projects in the works that could wrestle for the same financial resources, Main Street Theater's $1.8 million balance feels practical and viable.








