Changing Houston
New $80 million history center breaks ground downtown with eyes on the 2017 Super Bowl
A groundbreaking ceremony for the $80 million Nau Center for Texas Cultural Heritage marks the beginning of construction for the museum, just in time for it to open its doors in fall 2016 and welcome Super Bowl fans in 2017.
Mayor Annise Parker; Ric Campo, chairman of the Houston First Corp. board of directors; and John Nau III, chairman of the Nau Center board of directors, took shovels Wednesday to churn the first dirt at the site, located at 1801 Capitol St. between the George R. Brown Convention Center and Minute Maid Park.
“The Nau Center will be a cultural hub for tourists, educators and students alike,” Nau said in a statement. “It is expected that more than 400,000 visitors will pass through its doors each year, which will generate significant tourism dollars for the entire region. It is our hope that the center’s vivid presentations and educational offerings will inspire the next generation of great leaders.”
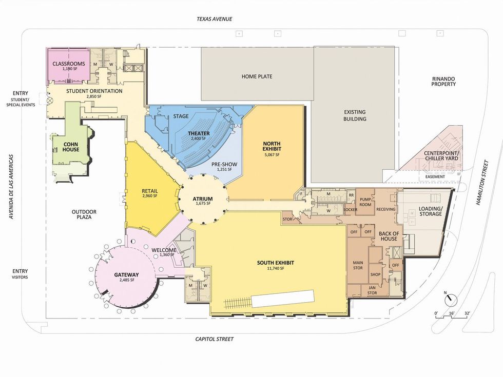
The 70,000-square-foot Nau Center, specifically placed along the Texas Independence Trail, will allow guests to take a chronological journey through southeast Texas history in the "Seize Opportunity" gallery. Exhibits here showcase historic sites and offerings that define this region, including the San Jacinto Monument, the George Ranch Historical Park, The Strand in Galveston, Spindletop, Washington-on-the-Brazos State Park and Space Center Houston.
The visitor center's focus is to promote events and activities throughout the 29 counties that make up southeast Texas. An education center for students and teachers offers interactive learning and a Texas Theatre previews the Nau Center experience. The "Get Big Things Done" exhibit highlights three of the region’s greatest achievements by using immersive presentations. Those are “Johnson Space Center Mission Control,” “Where 17 Railroads Meet the Sea” and “A Port That Welcomes the World.”
More features of the Nau Center include a grand rotunda, landscaped plaza for gathering, gift shop, enclosed walkways, rooftop garden, event spaces for private gatherings and additional exhibition and gallery space. The historic Cohn House also will be restored to its original turn-of-the-century beauty.
In addition to the Nau Center and Houston First, project team members are Bailey Architects, museum planning and design firm Gallagher & Associates, Linbeck Group LLC construction management company, Musick Construction Co., and The Sarrazin Group LLC, a Houston-based firm focused on the development of nonprofit and boutique commercial real estate projects.
To date, the Nau Center has $33 million towards the $80 million overall project budget. Future revenue streams for the Nau Center will include visitor admissions, field trips, venue rentals for private events, sponsorship of galleries and kiosks, the retail shop, hotel occupancy taxes and private funding.





